Tila
Servin mökki sijaitsee Teekkarikylän keskellä. Smökissä on iso sali, akvaarioksi nimitetty pienempi huone sekä suurtalouskeittiö. Tilassa voi pitää jopa 200 henkilön sitsejä tai muita vastaavia juhlia. Eteisestä löytyy naulakko joka riittää noin 100 ihmiselle. Otaniemen kappeli sijaitsee noin 150 metrin päässä.
Lisätietoa irtaimistosta löydät tilan tarkastuslistasta.
Huomioithan, että tilassa on juhlittu monet mahtavat juhlat ja mm. koristeluista on katossa niittejä muistona.
Sali
Salissa on äänentoisto ja pieni mikseri. Mikrofoni on mahdollista saada käyttöön pyytämällä palvelupisteeltä erikseen mikrofonikaapin avain. Salin puolella volyymin tasoa rajoittavat ainoastaan yleiset käyttösäännökset; ts. melutaso pidetään läpi tapahtuman kohtuullisena eikä tilan käytöstä saa aiheutua merkittävää haittaa alueen asukkaille. Salin valaistusta on uusittu keväällä 2019.
Sali juhlakunnossa:
Akvaario
Akvaario on erotettu salista isoilla ikkunoilla, joita peittää tummat verhot. Akvaariota käytetään yleensä tapahtumien takahuoneena ja ylimääräisten pöytien ja tuolien varastoimiseen, mutta sitä voi käyttää myös tapahtuman rauhallisempana sivuhuoneena tai pienten jatkojen järjestämiseen. Akvaariossa on kaksi korkeaa jääkaappia.
Keittiö
Smökin keittiö on modernisoitu suurtalouskeittiö, joka on huomattavasti Sitsikeittiötä suurempi. Keittiöstä löytyy kiertoilmauuni, kaksi suurtalouskattilaa, paistotaso, tiskikone ja kahvinkeitin. Kylmäsäilytystä varten tilassa on kylmiö ja pakastinhuone, jonka lisäksi löytyy myös pienempiä lisäkylmälaitteita. Ruokaa mahtuu kerrallaan laittamaan noin 10 henkeä.
Työturvallisuuden vuoksi keittiötä saa käyttää vain erillisen keittiökoulutuksen käyneen ihmisen valvonnassa TAI keittiöammattilaisen (esim. pitopalvelun) toimesta. Jos haluat käyttää Smökin keittiötä ja olet käynyt keittiökurssin, täytä oheinen lomake. AYY järjestää muutamia keittiökursseja vuosittain.
Keittiö on mahdollista varata myös erikseen ilman muuta Servin mökkiä. Tällöin pitää kuitenkin varmistaa, ettei melu häiritse Salin mahdollista käyttäjää.
Tarkan listan keittiön irtaimistosta löydät tilan tarkastuslistasta.
Kesäviikonloppujen varaukset
Servin mökkiin otetaan vastaan varauksia kesäviikonlopuille kesäkuun alusta elokuun puoleen väliin. Varauksia voi tehdä aikaisintaan seuraavalle kalenterivuodelle. Huomaathan, että näitä varauksia tehdessäsi seuraavan vuoden vuokrahinta voi vielä muuttua.
Käyttöaika
Servin mökin käyttöaika on 12-01.
Servin mökkiin on mahdollista hakea yökäyttölupaa tilasektorilta (yökäyttöaika on kello 01-05) oheisella lomakkeella. Yökäyttö maksaa 130 € / 150 € muun vuokran lisäksi. On suotavaa, että lupaa haetaan tilan varauksen yhteydessä, kuitenkin viimeistään kaksi viikkoa ennen tapahtumaa. Mikäli yökäyttöä anotaan alle 14 vrk ennen varausta (eli kun lasku varaajalle on jo lähtenyt), veloitetaan yökäytöstä 180 euron lisähinta muun vuokran lisäksi.
Tilan siivousta ja huoltotoimenpiteitä varten on erityisen tärkeää, että tila todella on käyttöajan ulkopuolella tyhjä. Mikäli käyttöaikaa on tarpeen pidentää, on siitä sovittava hyvissä ajoin etukäteen AYY:n kanssa. Lisätunneista laskutetaan tuntiveloitus, yökäyttöluvasta erillinen yökäyttömaksu.
Vuokra
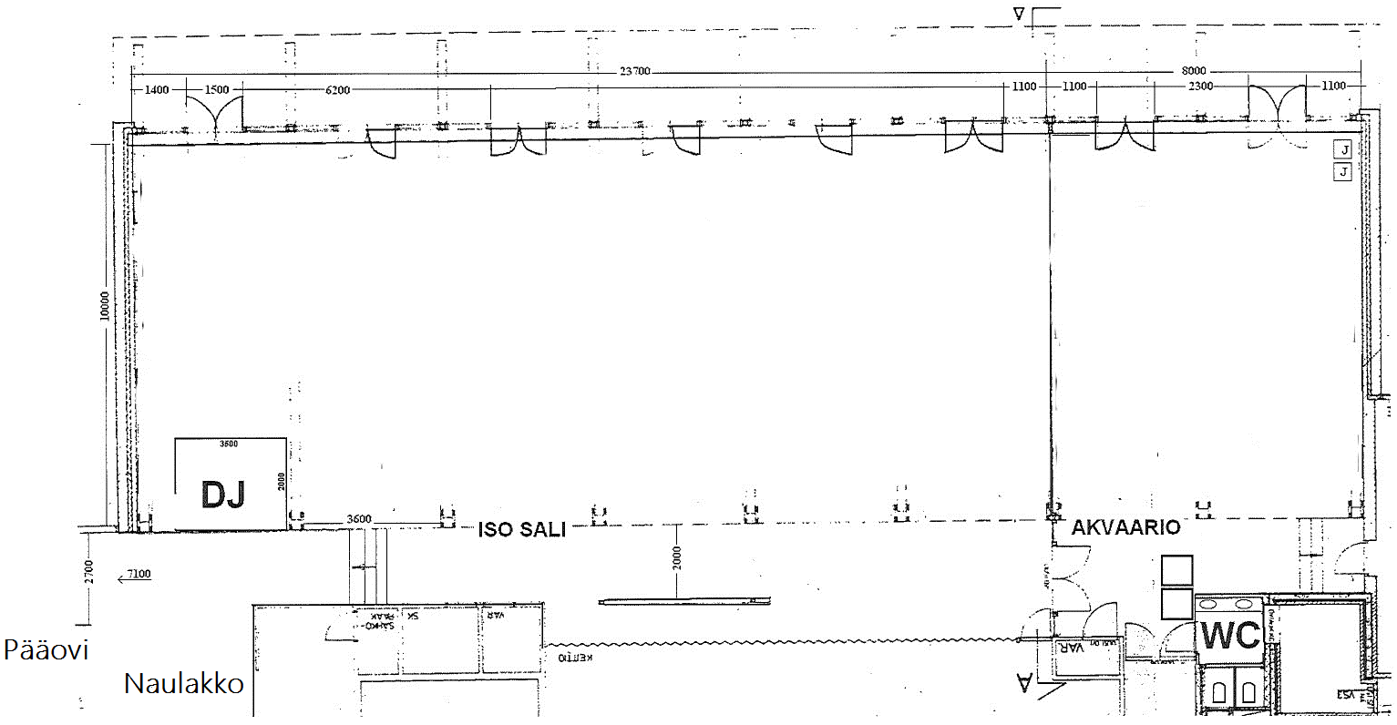
Pohjapiirustus
Lue myös:
Ohjeita tilojen varaamiseen ja käyttöön liittyen
Ylioppilaskunnan vuokratilojen käyttösäännöt ja niiden rikkomisesta seuraavat sanktiot





